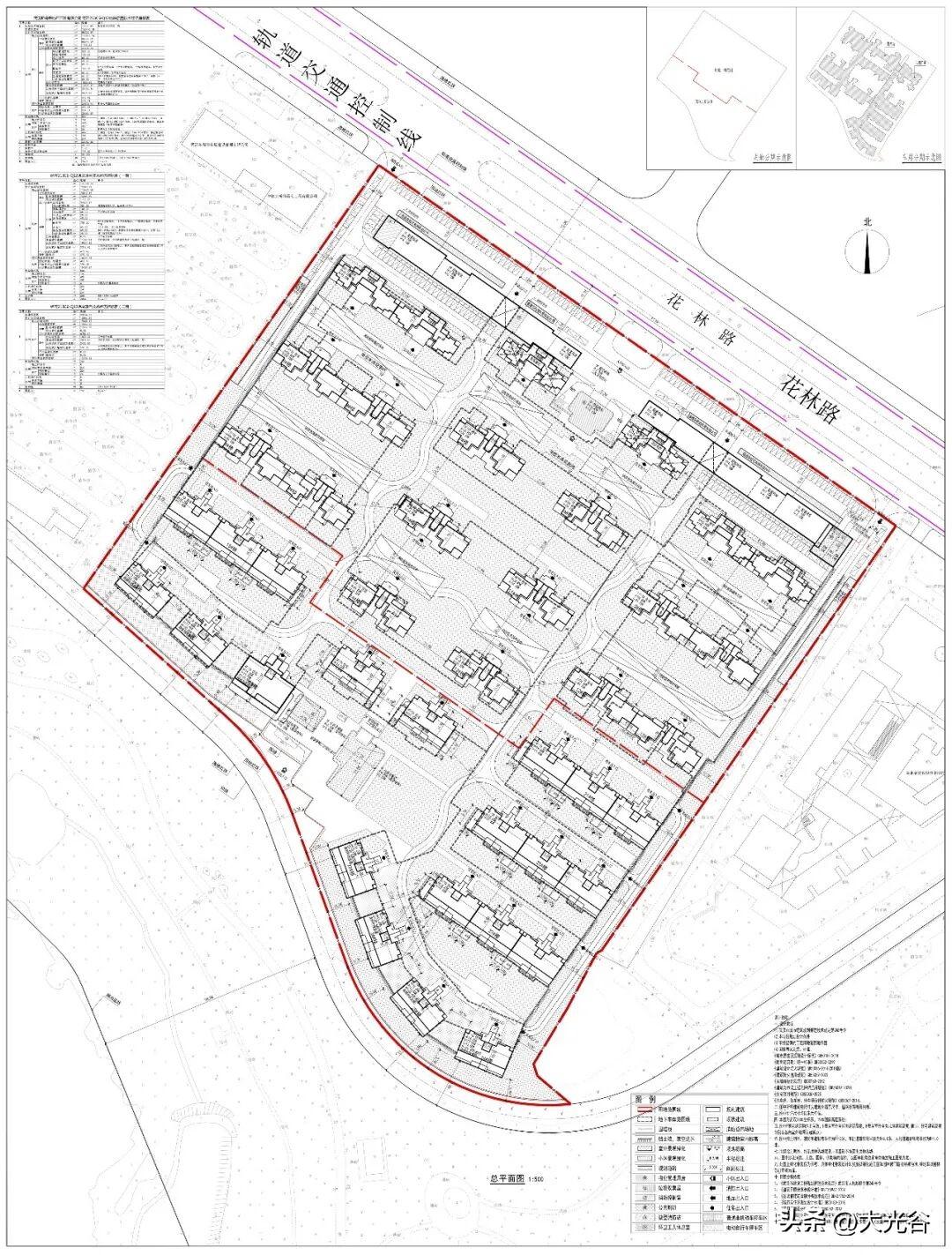
东风本田二厂片区一住宅项目公示! 近日,武汉经济技术开发区官方发布规划公示,武汉新得房地产开发有限公司申报的“居住项目(武汉经开区213C6-Q12地块)”总平面方案正式对外公布。 据悉,该项目对应P(2025)224号地块,由武汉新得房地产开发有限公司(招商蛇口全资子公司)于2025年12月24日以总价53232万元竞得,成交楼面价约5999.8元/㎡。地块性质为纯正住宅用地,出让年限70年,总用地面积达73935.49㎡,计容建筑面积约88723㎡,容积率仅约1.20,是区域内稀缺的低密住宅地块,规划定位偏向品质改善,区别于常规高层住宅项目。 从总平面方案来看,项目规划科学合理,主打低密舒适居住体验,拟建设别墅、洋房及小高层组合产品,规划住宅总户数772户,户型设计兼顾实用性与舒适度,楼栋布局充分考虑采光、通风与景观视野,致力于打造静谧宜居的社区环境。项目占位武汉经开区核心地段,地处原东风本田二厂片区,紧邻江城大道地铁站,周边坐拥经开永旺梦乐城、武汉杉杉奥特莱斯等商业配套,临近南太子湖北岸,交通、商业、生态资源一应俱全,宜居属性突出。 作为招商蛇口布局武汉车谷的重要作品,该项目依托央企品牌底蕴与成熟开发经验,将以严苛的品质标准推进建设。此次总平面方案公示及建设工程规划许可的推进,不仅为项目后续施工建设奠定了坚实基础,也将为武汉经开区注入新的人居活力,为改善型置业者提供高品质的居住选择,助力区域人居版图持续优化。


