云霞资讯网
128㎡网红理发店|甲方一眼爱上,快来抄作业吧
2026-04-22 15:06:30
空间设计事务
生活
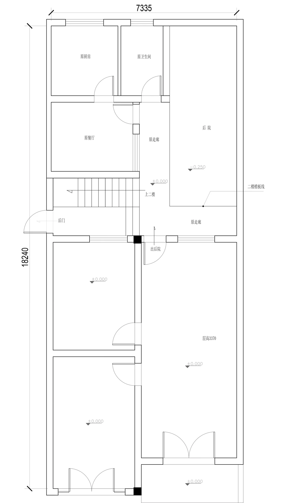
「iGo户型优化346期」
128㎡老房改网红理发店,需求拉满:
✅ 2 个独立美发包间
✅ 染烫区 + 洗头区
✅ 收银台 + 等候区
✅ 网红打卡区
✅ 后院休闲 + 庭院社交
原始户型杂乱无章,直接拆墙重构:
私密包间:2 个独立理发区,保障客户隐私;
服务动线:染烫 + 洗头区相邻,提升服务效率;
流量区:接待 + 等候 + 网红打卡区联动,拍照出片留客;
庭院利用:后院改休闲区,等位也能社交放松!
热门分类
体育赛事
小说频道
推荐
热榜
军事
NBA
体育
社会
明星八卦
娱乐
财经
科技
汽车
历史
国际
游戏
动漫
公益
搞笑
商业
互联网
数码
国际足球
房产
家居
时尚
科学探索
职场
育儿
股票
教育
影视
情感
热点
中国军情
武器
中国南海
中国足球
亚洲杯
科比
综合体育
CBA
投资
楼市
大咖秀
外汇
创业
风口
SUV
豪车
概念车
优惠
新能源
美国
欧洲
朝日韩
俄罗斯
孕期
街拍
恋爱攻略
婚姻
正能量