地区:贵阳
楼盘:中铁阅山湖云著
面积:154m²
风格:现代轻奢
户型:四室二厅
贵阳中铁阅山湖云著154㎡现代轻奢

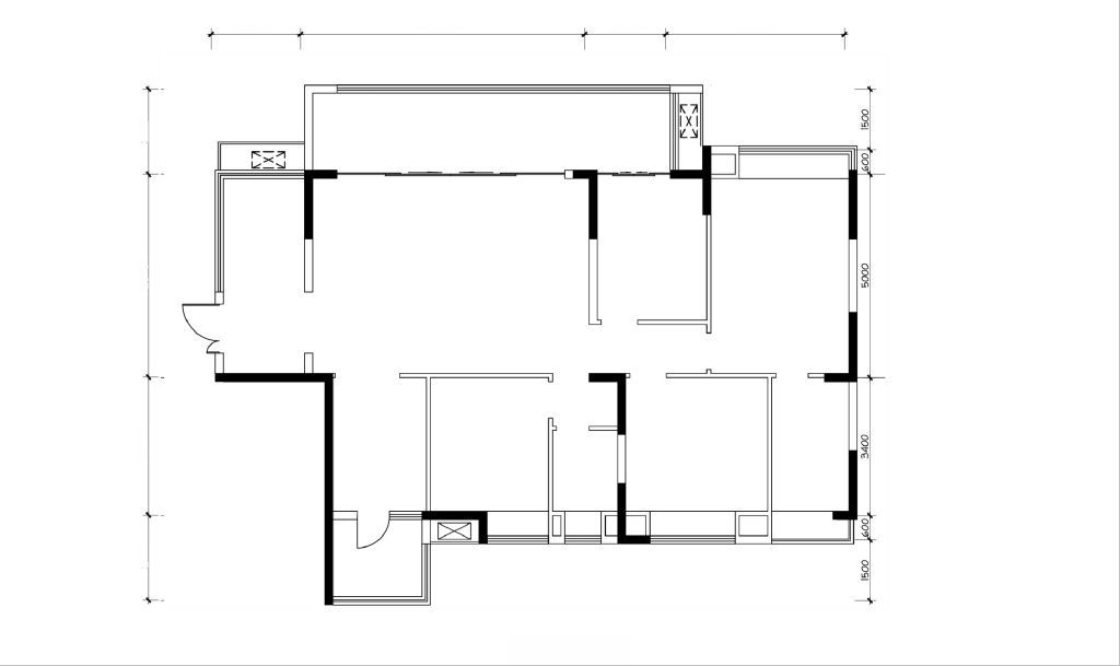
原始户型图

户型改造图
在“阅山湖云著”的这块154㎡现代轻奢空间里,设计师们为业主量身定制了一个兼具功能性和美观性的家居环境。业主的需求和喜好贯穿了整个设计过程,让空间焕发出独特的个性和品味。


首先,设计师们将卧室改造为餐厅区域,将生活阳台与厨房相融合,打造出开放式餐厨一体的空间。这样的设计不仅保留了现有横厅优势,还创造了独立而通透的功能空间,让家人在共享美食的同时享受亲密交流。

其次,客厅部分的阳台被纳入小孩房,为孩子们提供更大的活动空间和私密性。同时,设计师还为业主打造了一个开放式书房,满足了业主对小孩读书和接待需求的期盼。品茗区域的设置更是为男主人增添了一个专属静谧空间,让他在品茶的时光中放松身心。

在设计师们的构想中,现代轻奢元素融入到整个空间中,简约、精致,彰显出一种高品质生活的品味。无主灯的设计更是为整体空间增加了层次感和氛围感,让家居环境更显时尚、温馨。

这个设计方案不仅仅是一个简单的改造和装饰,更是对业主生活方式和家庭氛围的一种诠释和延展。借助设计师们的巧思和想象力,这个154㎡的家庭空间被赋予了更多可能性和情感,成为业主们生活的温馨之所、快乐之源。愿这个家庭空间充满爱和温暖,见证着业主们的幸福时光。