【深业云筑(二期)】
建面约89-143㎡云系臻品恭迎品鉴

项目基础数据:
【开发商】深圳市深业明宏地产开发有限公司
【规模】二期占地约1.85万方 建面约13.2万方
【套数】795套可售商品房
【产品】建面约89-143㎡
【装修】毛坯
【层数】32层 / 33层
【梯户比】2梯4户 / 3梯6户
【容积率】二期4.96
【绿化率】约40%
【车位数】949个
【物业费】住宅:3.5元/㎡/月
【二期交房时间】已交付,即买即住
【物业公司】深业物业运营集团股份有限公司
【项目地址】深圳·光明区·教科院实验小学(光明校区)旁

【项目核心价值】

41载国企典范,深业鹏南集团曾荣获“中国房地产百优企业”、“中国房地产诚信企业”等多项荣誉称号。深业首进光明,匠心打造品质纯居大城,引领光明生活方式迭代升级。


光明区作为粤港澳大湾区和广深科技创新走廊的重要节点,依托约99平方公里光明科学城,汇聚中山大学深圳校区、国家超算中心等世界一流科创资源,打造世界一流科学城。


幼儿园:自带12班制公立幼儿园
小学:一路之隔教科院实验小学(光明)
中学:2公里范围内光明第二中学、光明高级中学、光明深外高中园


双高速:邻近龙大高速、南光高速两大城市动脉,畅达福田南山核心区
双地铁:地铁6号线公明广场站约1.1km、13号线二期北延线新庄站(建设中)约763m,创享湾芯生活
主干道:毗邻公明南环大道、松白路等主干道,高效通达全城


深业云筑毗邻大仟里、天虹两大商圈
2公里内尽享一站式时尚繁华生活
大仟里:光明首家建面约15万方的一站式购物中心,步行约15分钟即达
天虹百货:2公里内享城芯繁华商业配套


项目旁规划公园(规划中):一路之隔,总占地约2.6万㎡社区公园,享自然为邻
尖岗湖公园:距项目约600米,13万㎡钟表文化主题公园,寻城央之趣
红花山公园:2公里可达,景观核心城市公园,登高眺远,怡然自得

——深筑云系 大城纯筑臻品——

现代极简立面,辉映艺术格调
两栖独立泳池,拥享跌水乐趣
抬高式园林设计,自然高差筑就美境


双入户归家大堂,彰显阔绰尺度
约2.1m高入户门,酒店式奢华享受

全龄化主题架空层
打造儿童游乐区、乐活建设区、颐乐阅读区
三个主题架空层功能区
焕新社区美好生活,愉悦美好时光

深业物业体系
国家一级资质物业定制待遇
全国20多个中大城市高品质业主品牌共识,30多年极致经验
构筑“深享居”专属服务体系,臻享美好生活

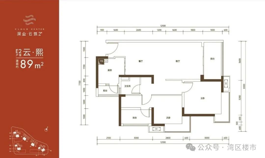
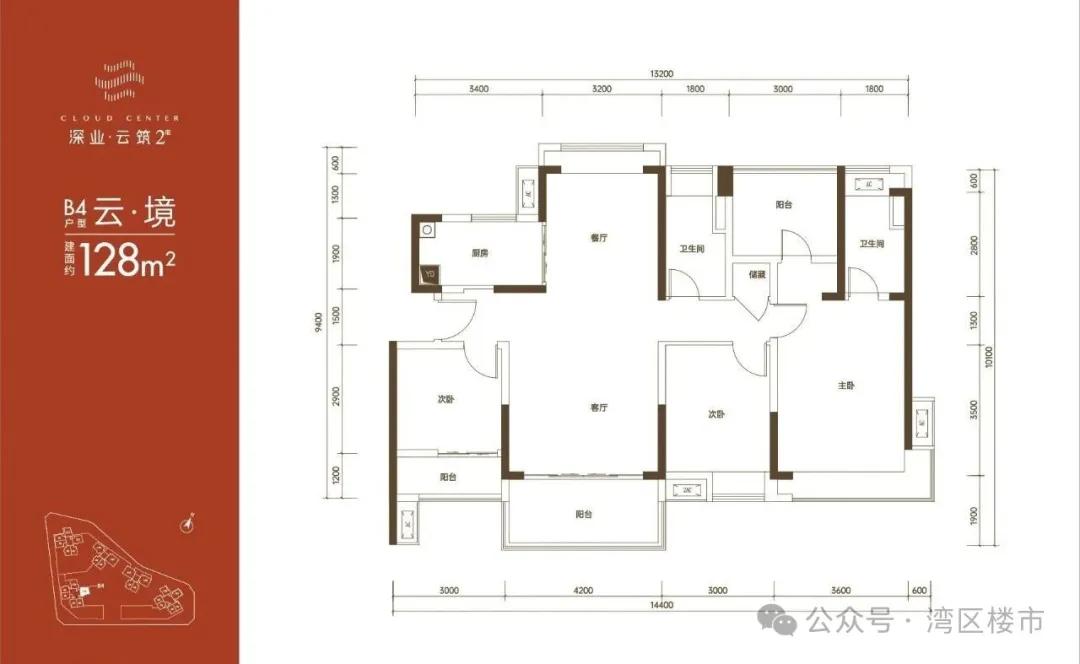
【项目户型图】








免责提示:本广告仅为要约邀请,不构成本公司对广告相应内容的承诺,一切图文资料以政府最终审批文件及双方签订的买卖合同为准,最终解释权归甲方所有。如有侵权,请联系删除。