这个家,称得上“极限挑战”!85平方米的空间要住下三代人,原本只有两室愣是搞出了三间房,开放式厨房和全都有的家居模块,不得不说设计真的不错。

两间卧室要住三代人,首先要解决卧室问题,把客厅改成卧室,让家里瞬间多间房,再加上现代北欧风的装修风格,以原色的木质作为空间设计的主题元素,打造出类比北欧挪威森林般的空间意蕴,全屋温馨又实用,这三代同堂生活超幸福。
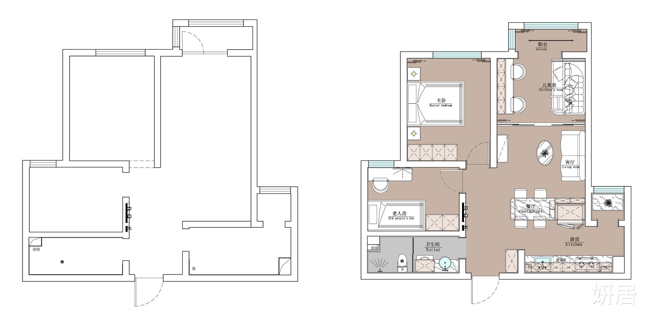
空间设计展示
这就是改造前后的设计图,很明显的是客厅被“一分为二”。在我们中国的户型中,通常将大块的面积留给客厅,而现代的生活方式,几乎没啥客人来,一家人一起坐下来看电视机率也很低,所以像这样大面积的客厅,以会客形式出现的家居功能逐渐转变成更为居家生活服务的设计形式,就像他们家这样,弱化其客厅设计,摆放小沙发,电视也不装,就像阅读角般,更适合居家生活,也为孩子营造学习氛围。
玄关
进门的右手边设计到顶的收纳柜,一进门就能感受到生活气息和温馨的氛围。因为它离餐厅近,而且本身户型的限制,没有设计放穿鞋凳的地方,但离餐厅近,所以老人不用担心弯腰穿鞋的问题,有餐椅帮忙。
餐厅+厨房
因为把客厅空间缩小(其实也可以说没有客厅了),同时也挤压了原来的餐厅空间,把原本封闭的厨房打开,做成了开放式设计,原来的非承重墙成为多功能收纳柜+餐桌一排设计,既满足了各空间的使用需求,又提升了空间的整体效果。

这个餐桌也是定制的,定制可以把尺寸拿捏精准,白色大理台面简洁大方,最吃惊的是底下的“桌腿”,起到了收纳功能,可以放不少的办公用品和收纳书的功能,由此可见,这张餐桌可不仅仅只是用餐区,还能成为书桌,是主人们办公的地方。搭配4把同款餐椅,简洁又温暖(常住人口,女主人带两小孩加外婆)

像餐椅和餐吊灯都是经典的北欧款式,瞬间就把气质给压住了。

厨房是一字型,原木色的橱柜、白色台面,地面与全屋都铺原木地板。 仔细看,厨房的壁砖全都用了白色的瓷砖,不作任何点缀,简约的同时看着特别大方,小面积、采光不好的空间就应该这样来设计。

在橱柜对面,放了智能冰箱,尺寸也是拿捏精准,传统的冰箱深度至少60,那它的后面再做收纳柜就显得很笨重,所以选择超薄尺寸才对。
客厅
准确地来说,这并不是传统的客厅设计,放一张带收纳功能的沙发,四周被书柜围绕,俨然一个安静的阅读空间。整个空间用温暖的原木色,奠定家的主基调,如春风细雨般,温馨又治愈。


原本挂电视的墙,现在被装饰柜给替代,放上装饰画再用绿植来点缀,就让家变得生机勃勃。生活里的每一处细节,都源于精心的布置,这些都是生活的热情,展示着家的温度。
儿童房
客厅被分割后大部分空间改成了儿童房,与客厅之间用玻璃门隔开,装上窗帘可随时切换不同生活场景。


为给孩子安全环保的居住环境,选择了实木的上下铺,床的对面墙是学习写字区,功能都是双份的。
主卧室

卧室也很简单,请忽略掉床品,买房装修已经花了不少钱,所以床品还是原来的。尽管搭配略显沉稳,但是女主人最喜欢的款式,全屋蓝色安宁静谧,呼应整体空间设计。



最后是卫生间,干湿分离设计,把洗烘一体机放在这里,洗完澡就可以直接洗衣服,一气呵成,非常方便。
说在最后谈起这次装修,女主人最满意的还是客厅设计,把它充分利用起来改成儿童房,非常实用。喜欢的朋友可以参考。